Home Back
UC-1 시리즈 CALS/CAD
 
UC-1  UC-Draw툴모음 Slab bridge (슬래브교)

아카데미가격 일람
유지보수/서포트 계약
Net PRO
라이선스펙
FPB포인트뱅크
PC・RC슬래브교의 배근도CAD프로그램
      CAD製図基準(案)対応SXF2.0対応 Windows98/Me/NT/2000/XP대응
Order
제품구입
製品詳細価格/購入サンプル画面

  화면샘플
ライン
▼메인화면
▼단면선택 화면

▼원홀할로 배치정보의 입력화면

▼원홀할로 배치정보의 확인화면

▼철근 선택화면 및 할로보강근 입력화면

▼강재배치 입력화면

도면생성 조건


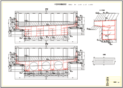
▼배근도(단면도)확인 화면

▼배근도(하면도)확인화면

▼가공도 및 철근표 확인화면

▼강재배치도 확인화면

▼도면샘플




Page Top TOP

FORUM8