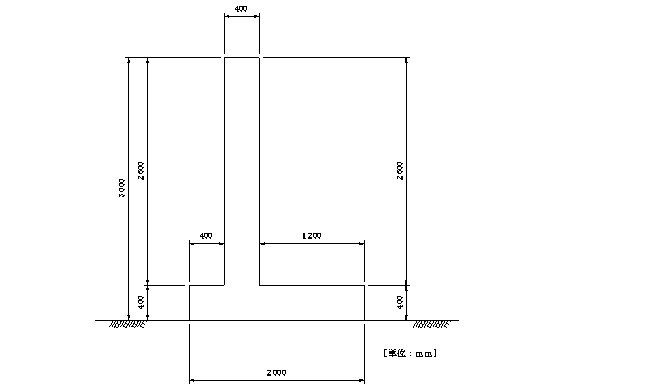
1章 躯体形状

奥行方向幅(ブロック長) B = 10000(mm)
2章 安定計算
(1)転倒に対する照査
| 荷重状態(水 位) | フーチング中心の作用力 | 偏心量eB(m) | 判 定 |
|
| M (kN.m) | N (kN) | 計算値 許容値 | ||
| 常時1 | 12.942 | 119.480 | 0.108 ≦ 0.333 | ○ |
| 常時2 | 9.615 | 107.480 | 0.089 ≦ 0.333 | ○ |
(2)滑動に対する照査
| 荷重状態(水 位) | フーチング中心の作用力 | 滑動安全率 | 判 定 |
||
| M (kN.m) | N (kN) | H (kN) | 計算値 安全率 | ||
| 常時1 | 12.942 | 119.480 | 32.510 | 2.205 > 1.500 | ○ |
| 常時2 | 9.615 | 107.480 | 24.383 | 2.645 > 1.500 | ○ |
(3)地盤反力度の計算
| 荷重状態(水 位) | フーチング中心の作用力 | 反力作用幅 (m) |
地盤反力度 (kN/m2) | 判 定 |
|
| M (kN.m) | N (kN) | 計算値 許容値 | |||
| 常時1 | 12.942 | 119.480 | 2.000 | 79.153 ≦ 300.000 | ○ |
| 常時2 | 9.615 | 107.480 | 2.000 | 68.162 ≦ 300.000 | ○ |
3章 配筋情報
| 部 材 | 位 置 | 1 段 目 | 2 段 目 | ||||||
| かぶり(cm) | 径 | 本数 | 鉄筋量 (cm2) | かぶり(cm) | 径 | 本数 | 鉄筋量 (cm2) | ||
| 竪壁基部 |
前面 | ||||||||
| 背面 | 10.0 | D13 | 4.000 | 5.068 | |||||
| つま先版 |
上面 | ||||||||
| 下面 | 11.0 | D16 | 4.000 | 7.944 | |||||
| かかと版 |
上面 | 11.0 | D13 | 4.000 | 5.068 | ||||
| 下面 | |||||||||
4章 断面計算
(1)曲げ応力度
| 部 材 | 荷重状態(水 位) | M (kN.m) |
圧縮応力度 (N/mm2) | 引張応力度 (N/mm2) | 判 定 |
| 計算値 許容値 | 計算値 許容値 | ||||
| 竪壁基部 |
常時1 | 18.211 | 2.156 ≦ 8.000 | 128.396 ≦ 160.000 | ○ |
| 常時2 | 13.153 | 1.557 ≦ 8.000 | 92.735 ≦ 160.000 | ○ | |
| つま先付け根 |
常時1 | 5.341 | 0.557 ≦ 8.000 | 25.278 ≦ 160.000 | ○ |
| 常時2 | 4.515 | 0.471 ≦ 8.000 | 21.369 ≦ 160.000 | ○ | |
| かかと付け根 |
常時1 | 17.070 | 2.132 ≦ 8.000 | 124.630 ≦ 160.000 | ○ |
| 常時2 | 12.034 | 1.503 ≦ 8.000 | 87.860 ≦ 160.000 | ○ |
(2)せん断応力度
| 部 材 | 設計位置 (m) |
荷重状態(水 位) | せん断力 (kN) |
せん断応力度 (N/mm2) | 判 定 |
| 計算値 許容値τa1 τa2 | |||||
| 竪壁基部 |
0.000 | 常時1 | 21.005 | 0.070 ≦ 0.390 1.700 | ○ |
| 0.000 | 常時2 | 15.171 | 0.051 ≦ 0.390 1.700 | ○ | |
| つま先照査 1 |
0.200 | 常時1 | 13.482 | 0.046 ≦ 0.390 1.700 | ○ |
| 0.200 | 常時2 | 11.384 | 0.039 ≦ 0.390 1.700 | ○ | |
| かかと照査 1 |
0.000 | 常時1 | 23.790 | 0.082 ≦ 0.390 1.700 | ○ |
| 0.000 | 常時2 | 16.595 | 0.057 ≦ 0.390 1.700 | ○ |