単柱式プラント基礎CADプログラム
初版リリース:2012.04.18
関連製品
UC-Drawツールズ
3D配筋
SXF3.1
IFC
UC-Drawツールズ Plant Foundation(プラント基礎)は、プラント基礎の配筋図・加工図・鉄筋表などの図面を一括自動生成するためのプログラムです。
| UC-Drawツールズ(図面確認 Ver.6)は、2010年 6月 17日、OCF検定に合格しました。 また、2012年 1月、OCF定期検定に合格し、OCF検定認証を継続しています。 (OCF:オープンCADフォーマット評議会 http://www.ocf.or.jp/) ■OCF検定結果 ・申請ソフトウェア: UC-Drawツールズ(図面確認 Ver.6) ・バージョン: 1 ・カテゴリー: 自動製図 |
![]() |
機能概要
3D配筋シミュレーション機能参考画像
形状、鉄筋
| 設備の種類 | 形状 | 基礎形状(平面図) | 備考 |
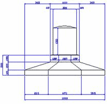
| 塔類 | スカート支持![]() |
![]() |
緑、青部分:平面図からみて8角形に対応 青部分のテーパ有無に対応 |
レグ支持![]() |
![]() |
青部分:平面図からみて矩形に対応 青部分のテーパ無に対応 |
|
| 球形貯槽 | ![]() |
![]() |
青部分:平面図からみて12角形、中抜きに対応 青部分のテーパ無に対応 |
| 横置円筒形 貯槽 |
![]() |
![]() |
青部分は平面からみて矩形且つテーパ有無に対応 |
| 平底円筒貯槽 | ![]() |
![]() |
青部分は平面からみて円形且つテーパ無に対応 |
| スカート支持 | レグ支持 | 球形 | 横置円筒形 | 平底円筒形 | |
| 塔類 | 塔類 | 貯槽 | 貯槽 | 貯槽 | |
| 上面縦鉄筋 | ○ | ○ | ○ | ○ | ○ |
| 上面横鉄筋 | ○ | ○ | ○ | ○ | ○ |
| 下面縦鉄筋 | ○ | ○ | ○ | ○ | ○ |
| 下面横鉄筋 | ○ | ○ | ○ | ○ | ○ |
| 土台縦鉄筋 | ○ | - | ○ | ○ | - |
| 土台横鉄筋 | ○ | - | ○ | ○ | - |
| 土台帯鉄筋 | ○ | - | ○ | - | - |
| 土台垂直筋 | ○ | - | ○ | - | - |
| 土台天端筋 | - | - | - | ○ | - |
![]() |
※横置き貯槽の場合は、 以下の鉄筋を配筋します。 ![]() |
| 正面図 | 側面図 | 平面図 |
![]() |
![]() |
![]() |
|
![]() |
※ 2021年4月からの消費税総額表示義務化に伴い、価格表記を「税抜」から「税込」へ移行いたします。
本体価格
価格は税込表示です
■本体価格
| 製品名 | 価格 |
|---|---|
| UC-Drawツールズ Plant Foundation(プラント基礎) | ¥279,400(税抜¥254,000) |
■フローティングライセンス価格
本体価格の40%を追加いただくことで、誰でも、どこでも、どのPCでも製品の利用が可能となります。
| 製品名 | 価格 |
|---|---|
| UC-Drawツールズ Plant Foundation(プラント基礎) | ¥111,760(税抜¥101,600) |
サブスクリプションサービス 契約価格
■サポート内容
・バージョンアップ無償提供 ・電話問合せテクニカルサポート
・問合せサポート(電子メール、FAX) ・ダウンロードサービス ・保守情報配信サービス
※ライセンス管理コスト削減、製品ご利用形態ニーズ多様化への対応を充実させることを目的として、従来の保守・サポート形態からより便利な、「サブスクリプションサービス」へ順次移行いたします(2016年4月1日~)。
価格は税込表示です
| 対象製品 | 初年度 | 1年 |
|---|---|---|
| サブスクリプション(UC-Drawツールズ Plant Foundation (プラント基礎)) | 無償 | ¥111,760(税抜¥101,600) |
| サブスクリプション(UC-Drawツールズ Plant Foundation (プラント基礎)フローティング) | ¥156,464(税抜¥142,240) |
■レンタルライセンス:短期間での利用により、低廉な価格でのライセンス利用が可能
■レンタルフローティングライセンス:ライセンスの認証をWeb経由で受ければ、誰でも、どこでも、どのPCでも製品の利用が可能
■レンタルアクセス:既に購入済みの製品の利用ライセンス数を増やす事が可能です。事前契約により、レンタルライセンス期間(1ヵ月~3ヵ月)の単位で自動的にライセンスが付与されます。利用実績に応じて後日請求いたします。事前申込価格として、レンタルライセンス価格の15%引きとなります。ユーザ情報ページにてお申込みいただけます。
※サービス強化、利便性向上を図る目的で「レンタルライセンス/レンタルフローティングライセンス」を2007年9月3日より提供を開始しました。
※レンタルライセンス/レンタルフローティングライセンス開始後の期間変更は出来ません。期間延長の場合は再申込となります。
レンタルライセンス/レンタルフローティングライセンス
価格は税込表示です
■レンタルライセンス
| 対象製品 | 2ヶ月 | 3ヶ月 | 6ヶ月 |
|---|---|---|---|
| UC-Drawツールズ Plant Foundation(プラント基礎) | ¥125,730 | ¥148,082 | ¥181,610 |
■レンタルフローティングライセンス
| 対象製品 | 2ヶ月 | 3ヶ月 | 6ヶ月 |
|---|---|---|---|
| UC-Drawツールズ Plant Foundation(プラント基礎) | ¥209,550 | ¥248,666 | ¥307,340 |
| 製品名 | アカデミー価格 |
|---|---|
| UC-Drawツールズ Plant Foundation (プラント基礎) | ¥223,520(税抜¥203,200) |
バージョンアップ開発履歴
■バージョンアップ、リビジョンアップ(無償保守)の主な内容を一覧にしています。
旧版改訂、リバイバル版リリース時などの場合にご参考ください。
| UC-Drawツールズ Plant Foundation(プラント基礎) | ||
| バージョン | リリース日 | 主なバージョンアップ内容 |
| 1.01.00 | 15/12/02 |
|
| 1.00.00 | 12/04/18 | 新規リリース |
製品購入/お問い合わせ窓口
■FORUM8 オーダーページで購入
製品購入 - オーダーページ にて、バージョンアップ・新規製品・各種サービスの御見積作成・申込・決済ができます。
クレジット利用や、分割払いシステムでの購入も可能です。
ご質問は、バージョンアップセンタ(vc@forum8.co.jp)までお気軽にお問い合わせ下さい。
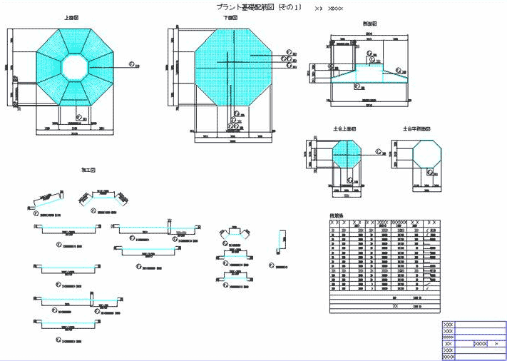
「プラント基礎の設計・3D配筋」の作図機能に特化し、プラント基礎の配筋図・加工図・鉄筋表などの図面を一括自動生成できます。
下記の各図面ファイル形式に対応した製品と連携できます。
PSX形式:「UC-Draw」の図面ファイル形式。加工図・鉄筋表の関連を保持していますので、加工図を編集した際に鉄筋表にもその修正を反映することが可能。
SFX:JACICが標準化したCADデータ交換用図面ファイル形式
DXF:「AutoCAD」の図面ファイル形式。主にファイル交換用。
DWG:「AutoCAD」の標準図面ファイル形式。
JWW:「JW_CAD」の図面ファイル形式(新)。
JWC:「JW_CAD」の(旧)図面ファイル形式。Ver.2.22H対応。
3D配筋ビューアーを搭載により、生成した3D配筋データが確認できます。また、「3D配筋CAD」との連携により、鉄筋の干渉チェックなどが容易に行えます。以下の3Dデータ形式に対応。
RFV :「3D配筋CAD」でインポート可能なファイル形式。
3DS:「3DS MAX」の標準ファイル形式。
IFC:IFC仕様のファイル形式。
適用基準は以下の通りです。

LOADING