BIM/IFC対応 Allplanによる3D・2D図面、設計計算書等を作成するサービス
English
従来までの解析支援サービス(Engineer's Studio®解析支援、地盤解析支援、EXODUS/SMARTFIRE解析支援、xpswmm解析支援、建物エネルギーシミュレーション支援)に加えて、「BIM対応 3D図面オプション」 および 「報告書・図面トータルサービス」 を開始することとなりました。
▲解析支援サービス一覧
BIM&VR 3D・VRエンジニアリングニュース(Up&Coming 連載)
BIM対応 3D図面オプション 概要
従来の解析支援サービスに加えて、BIM対応の3Dおよび2D図面を作成するサービスを開始いたします。
AllplanシリーズのBIM統合ソリューションを用い、3D図面および2D図面を作成いたします。
Allplanビューワとともに色分けした鉄筋状態など標準設定を行ったデータを提供します。
各種検討、2次元図面への利用、BIM機能のあるソフトへの展開(IFCデータ変換)などご活用いただけます。
なお、2次元図面はさらに下記オプションあるいは追加サービスとして提供いたします。
ただし、Allplanでの2次元図面の場合は、SXF変換が現在できませんので、弊社製品 UC-Draw等SXF変換可能なソフトを使用します。
提出成果としては、データ提出を基本とし、Allplan3次元データ(IFC対応)出力を最終成果として提供可能です。
対象となる構造物は、建築・土木構造物を対象としています。
▲ラーメン橋脚の3D図面例(Allplan-Engineeringでの表示)
■Allplan http://allplan.jp/
|
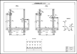
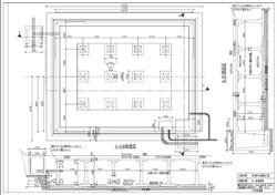
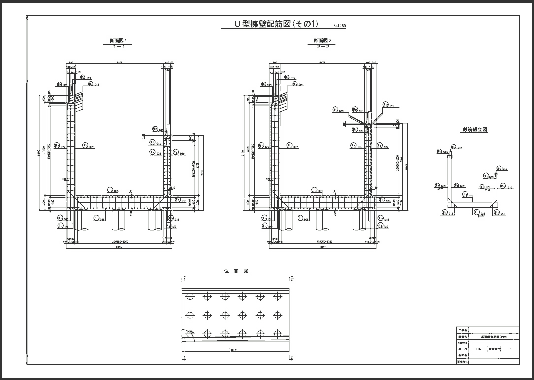
| ■3D配筋CAD 3D配筋CADによる鉄筋の干渉チェック、かぶり厚チェックが可能。 ●3D配筋図作成例 仮橋(橋台)・U型擁壁・貯水槽をサンプルとした3Dモデル配筋図およびUC-Draw等のCADソフトにて編集を行った2次元図面例。 ●2D配筋図作成例 UC-Draw等のCADソフトにて編集を行った二次元図面例。 ■仮橋(橋台) ■U型擁壁 ■貯水槽 |
| ■既設構造物を対象とした損傷箇所や補修状況の3D表現サンプルモデル Allplanを用いて、既設構造物を対象とした損傷箇所や補修状況の3D表現を行う方法について、3D図面サービスの活用事例をもとに紹介します。 3Dモデルによるリアルな再現が可能 構造物の損傷箇所および補修後の3Dモデルイメージを紹介します。鉄筋露出箇所については、鉄筋1本1本をモデル化して配置することで表現可能です。鉄筋配置および被りについては、既設竣工図面をもとに再現可能です。躯体、鉄筋、骨材の色を現実の色に近づけて表現するだけでなく、3Dモデル上で色を誇張して表現することもできます。また、構造物が水中に存在する場合は、モデルを作成して透過率を変えることにより表現可能です。これを応用して、地中のモデルを表現することも可能です。 |
| ■配水池サンプルモデル RC構造のための強力な配筋ツールを有するAllplan Engineeringを用いた配水池のモデリングを行ったサンプル事例を紹介します。 3次元のBIMモデルにするメリット このサンプルモデルは、手描きの古い図面からモデリングを行いました。このサンプルのように2次元の図面から3次元化し、ウォークスルーのアニメーションやVRでデータを表示することで、複雑な配筋状況を直感的に理解できます。また、属性を持った3次元モデルを作成することで、経年劣化したコンクリート・鉄筋の補修や、配筋状況を元に補強を施すなど、管理や将来の改修フェーズにおけるBIMの活用が可能になります。例えば調査報告を元に損傷状況を表現することも可能です。また、別のモデリング工程で作成したモデルにより構造解析も行っています。 |
報告書・図面トータルサービス 概要
従来の解析支援サービスに加えて、設計計算書および2D図面を作成するサービスを開始いたします。
解析から設計、図面までトータルにサポートする解析支援トータルサービスです。
オプションにて3D図面オプションを選択できます。2次元図面は、SXF変換が可能な弊社製品UC-Draw等SXF変換可能なソフトを使用します。
従来は、UC-win/FRAME(3D)に代表されるように、入力データサービスが中心でありましたが、入力・解析(設計)・図化までの一連の設計項目について、トータルで行うサービスとなります。
ここでの設計計算書は、動的解析のみならず、常時・レベル1地震時等に関する設計計算書や地中構造物の計算手法である応答変位法も含まれます。よって、UC-1製品やUC-win製品を活用した設計計算書の作成を行います。
また、設計図については、構造図・配筋図・各種構造図等の作図にも対応いたします。
対象構造物は、土木構造物全般(橋脚、橋台、柔構造樋門、排水機場、水門、配水池等)です。
提出成果としては、設計計算書および設計図ともに電子納品基準に準拠したデータを納品することを原則としています。
▲Allplan-Engineeringでの表示
成果品のチェックについて
成果品のチェックについては、国土交通省の詳細設計照査要領に準拠して照査を行い、照査報告書の提供も合わせて行います。また、当社で開発している設計成果チェック支援システムでのチェックも独自に行う予定です。
| チェックリスト資料 (橋梁詳細設計照査要領) (PDF, 29P, 151KB) |
▲システム構成と機能
標準見積表
| ● 作成基本単価内訳表 | |||
| 技術者種別 | 割合 | 技術者単価 | 計 |
| 主任技師 | 20% | ¥73,600 | ¥14,720 |
| 技師A | 30% | ¥65,600 | ¥19,680 |
| 技師B | 30% | ¥53,400 | ¥16,020 |
| 技師C | 10% | ¥44,300 | ¥4,430 |
| 技術員 | 10% | ¥39,700 | ¥3,970 |
| (A) 3D・2D図面作成工数単価 | ¥58,820 | ||
| ● 3D・2D図面作成工数 | ||||
| 3D・2D図面作成 | 単位 | 数量 | 見積工数 | |
| 資料整理(設計図書、図面、データファイル等) | 1 | 1.5 | 1.50 | |
| 躯体・3D配筋モデリング | 構造一般図(躯体) | 枚 | 2 | 2.00 |
| 配筋図・詳細図 | 枚 | 16 | 6.40 | |
| 加工図のみ・鉄筋表 | 枚 | 5 | 2.00 | |
| 自動干渉チェック | 対象となる組合せ | 組 | 13 | 1.30 |
| 個別干渉箇所の画像キャプチャ | 鉄筋種類数 | 種 | 0.0 | 0.0 |
| 鉄筋修正 | 修正対象鉄筋種類数 | 種 | 0.0 | 0.0 |
| 打合せ | 回 | 0.0 | 0.0 | |
| 作成モデル数による係数 | 2.5 | 0.0 | 0.0 | |
| (B) 3D作成工数 | 13.2 | |||
| 直接人件費 |
| (C) 直接人件費 合計(C)=(A)X(B) |
| 一般管理費 |
| (D) 一般管理費 (直接人件費の120%) ※最低固定管理費として直接人件費¥50,000未満の場合は一律¥60,000とする。 |
| 経費 |
| 報告書作成 |
| 解析結果整理 |
| 技術経費 |
| 急行料金(25%割増残業等) |
| (E) 経費小計 |
| ● 消費税 |
| (F) 消費税 |
| 見積総合計額 |
| 見積総合計額 (C)+(D)+(E)+(F) |
| 発注時必要資料等 |
データ作成の受領予定資料(必要に応じて提供を受ける。返却要否、返却予定期日、電子データ可否を明確にする)。
|
| 納期 |
| 完全納品・納品内容確認 期日 : 発注時必要資料受領後15日 電子データを納品する。 |
| 納品内容 |
必要に応じ、納品する内容を決定する。
|
| 保守サポート |
| 1年間の問い合わせサポート、不具合修正に無償対応。1年経過以降は、保守サポート契約を締結することが可能です。 |
見積サンプル:ラーメン橋脚3D配筋図作成業務
| ● 作業概要 |
| 対象となるラーメン橋脚について、躯体及び、鉄筋(29種類)について3Dモデリングを行う。 自動干渉チェックを、梁のみ、柱のみ、基礎のみ、梁×柱、柱×基礎の5組で行う。 Allplanデータによる納品とする。 |
| ● 作成基本単価内訳表 | |||
| 技術者種別 | 割合 | 技術者単価 | 計 |
| 主任技師 | 20% | ¥73,600 | ¥14,720 |
| 技師A | 30% | ¥65,600 | ¥19,680 |
| 技師B | 30% | ¥53,400 | ¥16,020 |
| 技師C | 10% | ¥44,300 | ¥4,430 |
| 技術員 | 10% | ¥39,700 | ¥3,970 |
| (A) 3D・2D図面作成工数単価 | ¥58,820 | ||
| ● 3D・2D図面作成工数 | ||||
| 3D・2D図面作成 | 単位 | 数量 | 見積工数 | |
| 躯体・3D配筋モデリング | 構造一般図(躯体) | 枚 | 1.0 | 1.0 |
| 配筋図・詳細図 | 枚 | 2.0 | 3.2 | |
| 加工図のみ・鉄筋表 | 枚 | 1.0 | 0.8 | |
| 自動干渉チェック | 対象となる組合せ | 組 | 5.0 | 0.5 |
| 個別干渉箇所の画像キャプチャ | 鉄筋種類数 | 種 | 0.0 | 0.0 |
| 鉄筋修正 | 修正対象鉄筋種類数 | 種 | 0.0 | 0.0 |
| 打合せ | 回 | 0.0 | 0.0 | |
| 報告書作成 | 見積作業日数 | 日 | 0.0 | 0.0 |
| (B) 3D作成工数 | 5.5 | |||
| 直接人件費 | |
| (C) 直接人件費 合計(C)=(A)X(B) | ¥323,510 |
| 一般管理費 | |
| (D) 一般管理費 (直接人件費の120%) ※最低固定管理費として直接人件費¥50,000未満の場合は一律¥60,000とする。 |
¥388,212 |
| 経費 | |
| 急行料金(25%割増残業等) | |
| (E) 経費小計 | ¥0 |
| ● 消費税 |
| (F) 消費税 |
| 見積総合計額 | |
| 見積総合計額 (C)+(D)+(E)(F) | ¥782,894(税抜¥711,722) |
| 発注時必要資料等 |
データ作成の受領予定資料(必要に応じて提供を受ける。返却要否、返却予定期日、電子データ可否を明確にする)。
|
| 納期 |
| 完全納品・納品内容確認 期日 : 発注時必要資料受領後10日 電子データを納品する。 |
| 納品内容 |
必要に応じ、納品する内容を決定する。
|
| 保守サポート |
| 1年間の問い合わせサポート、不具合修正に無償対応。1年経過以降は、保守サポート契約を締結することが可能です。 (参照:保守サポート契約) |
見積サンプル:配水池3D配筋図作成業務
| ● 作業概要 |
| 対象となる配水池について、躯体及び、鉄筋(種類52種類)について3Dモデリングを行う。 自動干渉チェックを、底版のみ、側壁のみ、柱のみ、頂版のみ、底版×側壁、底版×柱、側壁×頂版、柱×頂版の8組で行う。 個別干渉箇所の画像キャプチャは組み合わせの可能性のある鉄筋毎に行う。 鉄筋の修正は個別干渉箇所キャプチャの上、協議の上、修正方法を決定し、修正する。 本サンプルでは半数を修正と想定。 打合せ1回、報告書作成を見込む。 |
| ● 作成基本単価内訳表 | |||
| 技術者種別 | 割合 | 技術者単価 | 計 |
| 主任技師 | 20% | ¥73,600 | ¥14,720 |
| 技師A | 30% | ¥65,600 | ¥19,680 |
| 技師B | 30% | ¥53,400 | ¥16,020 |
| 技師C | 10% | ¥44,300 | ¥4,430 |
| 技術員 | 10% | ¥39,700 | ¥3,970 |
| (A) 3D・2D図面作成工数単価 | ¥58,820 | ||
| ● 3D・2D図面作成工数 | ||||
| 3D・2D図面作成 | 単位 | 数量 | 見積工数 | |
| 躯体・3D配筋モデリング | 構造一般図(躯体) | 枚 | 1.0 | 1.0 |
| 配筋図・詳細図 | 枚 | 3.0 | 4.8 | |
| 加工図のみ・鉄筋表 | 枚 | 1.0 | 0.8 | |
| 自動干渉チェック | 対象となる組合せ | 組 | 8.0 | 0.8 |
| 個別干渉箇所の画像キャプチャ | 鉄筋種類数 | 種 | 28.0 | 2.1 |
| 鉄筋修正 | 修正対象鉄筋種類数 | 種 | 14.0 | 1.2 |
| 打合せ | 回 | 1.0 | 0.4 | |
| 報告書作成 | 見積作業日数 | 日 | 1.0 | 1.0 |
| (B) 3D作成工数 | 12.1 | |||
| 直接人件費 | |
| (C) 直接人件費 合計(C)=(A)X(B) | ¥709,762 |
| 一般管理費 | |
| (D) 一般管理費 (直接人件費の120%) ※最低固定管理費として直接人件費¥50,000未満の場合は一律¥60,000とする。 |
¥851,715 |
| 経費 | |
| 急行料金(25%割増残業等) | |
| (E) 経費小計 | ¥0 |
| ● 消費税 |
| (F) 消費税 |
| 見積総合計額 | |
| 見積総合計額 (C)+(D)+(E)+(F) | ¥1,717,624(税抜¥1,561,477) |
| 発注時必要資料等 |
データ作成の受領予定資料(必要に応じて提供を受ける。返却要否、返却予定期日、電子データ可否を明確にする)。
|
| 納期 |
| 完全納品・納品内容確認 期日 : 発注時必要資料受領後11日 電子データを納品する。 |
| 納品内容 |
必要に応じ、納品する内容を決定する。
|
| 保守サポート |
| 1年間の問い合わせサポート、不具合修正に無償対応。1年経過以降は、保守サポート契約を締結することが可能です。 (参照:保守サポート契約) |
製品購入/お問い合わせ窓口
3次元汎用解析ツールとして、2次元モデルから3次元立体フレームモデルまで作成可能です。
また、板要素を使用したFEMモデルも作成可能で、部材は線形要素から非線形要素まで、荷重も静的荷重から動的荷重まで対応可能となります。
橋梁の静的解析や動的解析、河川構造物の耐震計算や水道施設の耐震診断、建築構造物の計算に活用できます。
また、他社にない機能としまして弊社のUC-1設計シリーズの橋台・橋脚・基礎・震度と連携して、保耐法の計算データから動的解析が可能なデータを自動生成可能です。
もちろん可能です。ただし対象を桁橋や直線橋などに限定していませんので、出せるものは計算書レベルの出力となります。
Excelへのカット&ペーストが可能ですので報告書のひな形へ貼り付けながら結果をとりまとめることが可能です。
橋梁設計で使用される道路橋示方書のH14年版、H24年版、H29年版に対応しています。
また、断面照査ではコンクリート標準示方書の限界状態設計法にも対応しており、構造物の照査まで可能です。
線形解析、静的解析メインの方はLite版、フレーム解析で非線形解析、動的解析まで必要な方はadvanced版、非線形のFEM解析が必要な方はultimate版をご購入下さい。
製品ヘルプもしくはHPに電子マニュアルに製品詳細と操作法を準備しております。その他、定期的に開催される有償セミナーでは静的解析モデル、動的解析モデル、FEMモデルの3つのモデル化の講習が受講でき講師と質疑応答も可能です。また有償となりますが、計算モデルを作成する解析支援サービスもあり年間100件を超える実績がございます。
解析支援サービス:https://www.forum8.co.jp/product/ucwin/ES/ESkaiseki.htm

LOADING