Allplan系列是德国CAD制造商Nemetschek公司开发的BIM统合解决方案。通过该BIM统合解决方案,可连续进行基本图纸、渲染图像、演示映像、详细施工图、数量选出和概预算,可以设计、表现建筑物的整个生命周期。此外,模型的变更可以简单地反映到所有数据。
将制作好的建筑及土木结构数据以3DS/Collada格式导出,可以与本公司开发的VR模拟软件UC-win/Road进行连接。
拥有通用CAD的基本绘图功能和建筑CAD的各种构件,使用这些功能制作模型,甚至可以进行3D显示、渲染、数量计算、演示用的数据加工。从基本功能到非常高级的功能,囊括了所有功能,并且连细小的设定都能简单易懂地进行,因此可以说是非常全能的建筑、建设CAD。
Allplan 2019通过了一般社团法人 buildingSMART Japan实施的IFC检定(日文)。
| ■IFC检验结果 | ||
| ・软件名称 | : | Allplan |
| ・版本 | : | 2019 |
| ・检定区分 | : | 输入2:CAD系/输出 |
| ・检定MVD名称 | : | 土木模型视图定义2018 |
| ・认定编号 | : | 输入 CVL01-i-1805/输出 CVL01-e-1810 |
| ・认定日 | : | 输入 2019年4月18日/输出 5月28日 |
产品构成
※○:可以通过购买选项使用
| 产品名 | Basic | Architecture | Engineering Building |
Engineering Civil |
AEC | |
| 建模和草图功能 | 2D草图,尺寸线,文本,排版(图纸编辑) | ● | ● | ● | ● | ● |
| 三维建模,视图(投影图),区间(截面图),平面图 | ● | ● | ● | ● | ● | |
| 通用的自由形状建模 | ● | ● | ● | ● | ● | |
| 被定义的内容 (符号,物件,固定工具SmartParts,PythonParts) |
● | ● | ● | ● | ● | |
| Visual scripting | ● | ● | ● | ● | ● | |
| 可定制的内容 (固定件编辑,SmartParts,PythonParts) |
● | ● | ● | ● | ||
| 沿着路径的区间 | ● | ● | ● | |||
| 通用的拾取数量 | ● | ● | ● | ● | ||
| 视觉化 | 静止画 - CineRender,实时渲染器,照明,表面 | ● | ● | ● | ● | ● |
| 动画 - 相机路径,影子 | ● | ● | ● | ● | ||
| 建筑功能 | 建筑组件(门、窗、楼梯、屋顶等) | ● | ● | ● | ||
| 房间的体积和墙壁精加工材料的拾取数量 | ● | ● | ● | |||
| 立面 | ● | ● | ||||
| 改建工具 | ● | ● | ● | |||
| 建筑工程 | 结构组件(梁、墙、柱、板等) | ● | ● | ● | ||
| 骨架模型(椽子等) | ● | ● | ● | |||
| 土木工程 | 土木结构物(桥梁、土木工程组件) | ● | ● | |||
| 地形 | ● | ● | ● | |||
| 城市规划 | ● | ● | ||||
| 用地规划(道路,环岛,路径扫动) | ● | ● | ||||
| 景观 | ● | ● | ||||
| 加强功能 | 钢筋,接头,网状配筋 | ● | ● | ● | ||
| 自由形状的钢筋 | ● | ● | ● | |||
| 预应力锚筋(应力材料) | ● | ● | ● | |||
| 制造商内容(Ancotech, Erico-Lenton, Halfen, Peikko, SAH, Shöck…) | ● | ● | ● | |||
| BAMTEC配筋技术 | ● | ● | ||||
| Allplan Bridge |
Allplan Bridge Modeler (桥梁的参数建模) | ○ | ○ | ○ | ○ | ○ |
| Allplan Bridge Prestressing | ○ | ○ | ○ | ○ | ○ | |
| Allplan Bridge Linear Analysis | ○ | ○ | ○ | ○ | ○ | |
| Allplan Bridge International | ○ | ○ | ○ | ○ | ○ | |
| Allplan Bridge Code Based Design | ○ | ○ | ○ | ○ | ○ | |
| 界面 | DWG、DXF、DGN、PDF、ASCII | ● | ● | ● | ● | ● |
| 连接功能 | 3D-PDF、SKP、STL、3DS、C4D、3DM、KMZ、U3D、VRML、DAE | ● | ● | ● | ● | ● |
| IFC2x3、IFC4、GEO-Tiff | ● | ● | ● | ● | ● | |
| Point Clouds - Scalypso Freemium | ● | ● | ● | ● | ● | |
| 与钢筋弯曲机的连接(BVBS) | ● | ● | ● | |||
| 与成本管理的连接(Nevaris、CPIXML) | ● | ● | ● | ● | ||
| 与结构分析的连接(SCIA、FRILO、CERDUS) | ● | ● | ● | ● | ||
| Allplan Bimplus |
Basic | ● | ● | ● | ● | ● |
| Pro版本(但只有SSA) | ● | ● | ● | ● | ||
| SCIA AutoConverter Light | ● | ● | ||||
| Allplan Share |
与远程地方的连接功能 | ○ | ○ | ○ | ○ | ○ |
| Allplan Exchange |
计划管理系统(仅可在部分国家使用) | ○ | ○ | ○ | ○ | ○ |
| 可定制的用户界面 | 基于任务、角色的功能 | ● | ● | ● | ● | ● |
| 支持高分辨率屏幕,多屏幕 | ● | ● | ● | ● | ||
| 语言 | 本地语言和英语 | ● | ● | ● | ● | |
| 所有支持语言 普尔加利亚,中国简体,德国,英语,法国,希腊,荷兰,意大利,日本,克罗地亚,波兰,葡萄牙,罗马尼亚,俄罗斯,斯洛伐克,斯洛文尼亚,西班牙,土耳其,捷克,匈牙利 |
● | |||||
| 选项 | Allplan Bridge - 桥梁的参数建模 | |||||
| Allplan Environment (地形,城市规划,用地规划,景观) | ||||||
| Allplan 授权服务器 | ○ | ○ | ○ | ○ | ○ | |
| Allplan Workgroup 管理 | ○ | ○ | ○ | ○ | ○ | |
界面
BIM建模
丰富的高功能目标和构件制作工具
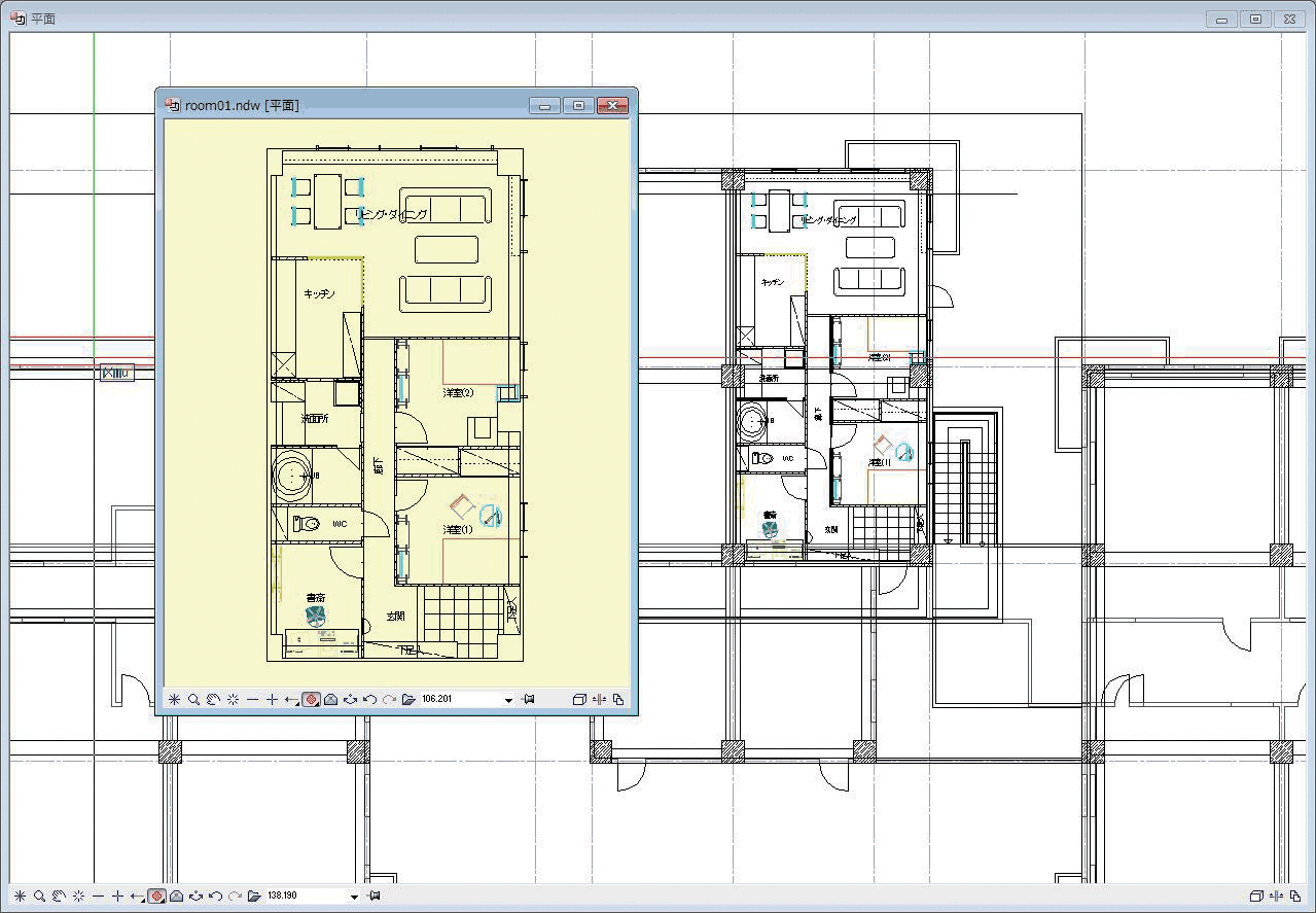
除了柱子、梁、底板、墙壁等基本的构件制作工具之外,还可以使用高功能目标(窗、门、楼梯、立面等构件)来制作建筑物模型。将每个目标准备的各种各样的模式组合起来,可以迅速制作高度计划。另外,在平面图、立面图、正等轴测图中进行结构构件和目标的输入、编辑时,变更实时地反映在3D画面的立体模型中,可以一边直观地确认构件的结合、切断、交叉、构件表面的贯通等操作。
只要用光标指定范围,就能自动检测出墙壁的轮廓,附加房间属性。由此,进行数量计算时可以进行房间精加工材料的数量计算。如果事先设定好墙壁材料、天花板材料、底板材料等精加工材料的话,可以对整个房间进行统一的精加工材料配置。
![]() |
![]() |
| ▲[房间]工具属性 | ▲参数 |
准备立面和扶手等丰富的模板,支持广泛的设计。具备幕墙和玻璃砌块等各种各样的模式,通过编辑模板可以简单地设计复杂的形状。在3D画面及正等轴测图中可以一边确认目标的形状一边输入和编辑。
![]() |
| ▲立面之模板示例 |
构件制作工具可以使用柱、梁、底板、墙、基础等丰富的命令进行直观的作图。因为各构件保持着三维信息,所以在进行2D作图的同时,会自动生成3D图纸。另外,通过3D画面的绘制设定和构件的属性分配等设定,也可以进行体积、重量、面积等数量计算。
![]() |
![]() |
| ▲正等轴测显示 | ▲在多窗口中同时确认2D图纸和3D模型 |
通过AllplanCAD目标的3D建模功能可以制作模型,提高建筑物模型的品质。
圆,样条,球,圆柱,一般固体等的更新,以及可以处理在3DCAD中使用的固体形状。
另外,可以在倒角、切片、loft、路径扫动中制作复杂的形状。
![]() |
![]() |
![]() |
![]() |
| ▲Siemens PLM公司制造的Parasolid 3D内核 | |||
![]() |
| ▲Python Parts的参数模型 |
配筋
通过指定·配置钢筋的形状来配筋。具备主要钢筋形状数据,任意形状的生成和配筋后的修也容易进行。如果使用利用预先准备的主要配筋模式的FF组件功能,可以制作更有效率的配筋图。
和棒状钢筋一样,输入钢材规格、钢筋直径、钢筋盖和钢筋间隔等信息,通过预先制作必要的配筋模式,可以进行底板钢筋和墙壁钢筋等网状配筋。
定义截面的钢筋配置,沿着3D曲线的路径配置钢筋的功能
最小化配筋组件的文档中的错误,削减设计、计算、分配、文档的作业时间。
刷新棒状钢筋和网状钢筋的标签。更高效地制作钢筋配置和配筋的BIM模型。
根据不同的直径、颜色的显示,收藏支持功能等,有效地控制配筋信息。
数量计算
根据构件的各种数量计算概算工程费
从钢筋、模板、混凝土等的结构数量到墙材、底板等的精加工数量,由于可以通过体积、面积、重量等各种计算方法进行结构构件的数量计算,所以可以掌握工程费用。
![]() |
![]() |
![]() |
| 各种表示的数量指示器 | ||
根据配筋时设定的信息,进行钢筋量的计算。计算结果作为数量表被表现,项目可以根据需要定制。根据钢筋的种类,可以确认单位重量、每根钢筋的质量、合计重量等。
![]() |
![]() |
![]() |
| 钢筋形状列表 | 数量计算公式的定义 | 混凝土量的数量计算 |
柱、梁、底板、墙、基础等,对每个构件进行的数量计算的结果作为数量表显示在2D图纸上。在制作数量计算书时可以作为依据图使用。
![]() |
| 框架的数量计算 |
通过预先进行工种属性的分配,可以算出工种的精加工数量。精加工数量、长度、面积、体积等,根据精加工构件的种类不同,可以使用不同的计算方法。
| 工程种类 |
混凝土工程 / 抹灰工程 / 组装工程 / 涂装工程 / 瓷砖工程 / 石材工程 / 设备工程 / 框架工程 / |
| 项目 | 未精加工结构、精加工 / 房间、楼梯 / fixture / 索引图 / 预制构件 / 测量 / 扶手、栅栏 / 成本管理 / 目标管理 / 城市设计 / 底板面积 |
▲可以制作数量表的种类
通过数量标志,图纸中显示数量和被图表化的工程费用, 可以从视觉上确认。每个属性的图表显示也可以,所以设计各阶段的数量和工程费用的估算可以掌握。
*工程费用的显示需要于Allplan BCM的连接。
2D制图/三维模型
2D图纸上可以参照外部文件的XRef功能,定义反复利用的构件且简单进行3D模型制图的智能功能等,准备了尺规作图效率提升的丰富多彩的功能。还可以从创建的三维模型中切出任何截面视图。
![]() |
| ▲用高功能目标创建3D空间 |
通过生成三维模型的截面,可以确认2D图纸。在生成截面时,根据设定自动的尺寸线·尺寸值的附加也可能。因为可以在任意的地方进行截面生成,所以可以用于剖面图的制作。
|
| 从3D模型切出来的2D图纸 |
组件之间非常复杂的细节,可以简单而迅速地进行冲突检查。
|
利用DTM(数字地形模型)功能,可以制作、编辑地形数据。根据DTM颜色功能可以用颜色表现高度的间隔,也可以绘制等高线。与城市规划功能一起,地形也可以定义道路和街道。
![]() |
| DTM(数字地形模型) |
在图纸中插入XRef文件,可以参考外部的图纸文件(NDW文件或DXF/DWG/DGN文件)。XRef文件的显示反映在链接源的外部文件中进行的变更内容。
|
| 通过XRef功能配置相同样式的室内装饰 |
截面、视图、隐线图中的建筑物的影子直接从模型生成到三维建筑物中。
|
使用排版编辑器,可以很容易地基于一个3D模型制作多本设计图书。也可以配置制作好的数量表。
|
| 选择文件进行布局 |
通过动画来表现3D模型,可以制作出直观且易于传达的演示。模型的透射设定、钢筋的颜色区分、建筑物质感的表现等,可以自由的定制。
|
|
| 透射设定的配筋模型的动画 | 动画表现 |
追加环境光遮蔽・支持在房间的角等接近的部分变暗的效果。
可以制作不考虑纹理和颜色设定的白色模型。
|
|
| CineRender (Maxon公司渲染器) | RealTime渲染器:白色模型 |
数据连接
与IFC等各种数据形式连接
IFC(Industry Foundation Classes)是IAI面向建筑行业提出的标准文件格式,是一种除图形数据外还具备构件属性数据的三维建筑模型数据。可以进行各种3d、2d文件形式的数据交换。另外,通过与UC-win/Road和各种分析软件等FORUM8产品的连接,可以对建筑能源、火灾和避难、泛滥、交通网络、结构等进行各种分析,并可以通过VR进行可视化模拟。
| 导入 | |
| AutoCAD | dwg , dxf , dwt , dxb |
| MicroStation | dgn |
| PDF、PDF-A、3D-PDF | |
| IFC※ | ifc |
| CINEMA 4D | c4d |
| SketchUp | skp |
| Rhino | 3dm |
| STL | stl |
| VRML | wrl |
| Hpgl/2 Plotter文件 | plt , hp , hpg , hpl , pm |
| 3D Studio | 3ds |
| Adobe Illustrator | ai |
| 导出 | |
| AutoCAD | dxf , dwg , dwf |
| MicroStation | dgn |
| PDF、PDF-A、3D-PDF | |
| IFC※ | ifc |
| SVG | svg |
| Hpgl/2 Plotter文件 | hp, hpg , hpl , pm |
| RIB iTWO | cpixml |
| SketchUp | skp |
| Google Earth | kml |
| CINEMA 4D | c4d , c4u |
| Rhino | 3dm |
| STL | stl |
| VRML | wrl |
| Universal 3D | u3d |
| 3D Studio Max | 3ds |
▲可在Allplan中导入导出的文件格式
BIM与VR的连接
将Allplan制作的建筑·土木结构以3DS形式导出,可以连接到UC-win/Road。
通过这种连接,除了可以评估景观、周边环境、道路之外,进行经过达成共识过程的计划和表现,以实际业务活用为前提的4D(施工)、5D(成本)模拟表现。
相关网页:IM&VR - BIM建筑土木设计解决方案(日文)

Allplan的三维信息联动
[桥墩的设计・3D配筋(日文)]、[桥台的设计・3D配筋(中国版)]、[设备基础设计·3D配筋 (日文)]、[箱式桥台的设计・3D配筋(日文)]、[挡土墙的设计·3D配筋]、[检查井的设计·3D配筋(日文)]、[柔性结构槽的设计·3D配筋(日文)]、[轻型挡土墙的设计计算(日文)]、[RC下部工的设计・3D配筋(日文)]、[钢架桥墩的设计计算(日文)]、[开水路的设计·3D配筋(日文)]、[3D配筋CAD(日文)]以上的12种产品可以通过导入Allplan形式或IFC形式的设计数据来进行连接。
通过此连接,用UC-1系列设计的框架和钢筋三维显示,可以直接编辑。另外,也可以进行反映编辑过的钢筋配置等的二维配筋图(平面图、剖面图等)、钢筋加工图、构件数量表的制作功能。UC-1系列预计依次支持Allplan连接/IFC输出。
![]() |
![]() |
![]() |
![]() |
| ▲桥台的设计样品 (倒T型翼墙・有受台(AUTOCHO1)) 上:3D配筋视图 下:Allplan |
▲挡土墙的设计样品 (倒T型直接基础(AUTOCHO1)) 上:3D配筋视图 下:Allplan |
软件价格
■软件价格
| 产品名 | 价 格 |
| Allplan Basic 2022 (英语版/日文版) | OPEN |
| Allplan Architecture 2022 (英语版/日文版) | OPEN |
| Allplan Engineering Building 2022 (英语版/日文版) | OPEN |
| Allplan Engineering Civil 2022 (英语版/日文版) | OPEN |
| Allplan AEC 2022 (英语版/日文版) | OPEN |
SSA价格
| 対象产品 | 合约价格 1年 |
| Allplan Basic 2022 (英语版/日文版) | OPEN |
| Allplan Architecture 2022 (英语版/日文版) | OPEN |
| Allplan Engineering Building 2022 (英语版/日文版) | OPEN |
| Allplan Engineering Civil 2022 (英语版/日文版) | OPEN |
| Allplan AEC 2022 (英语版/日文版) | OPEN |
版本开发履历
| Allplan 2020 | ||
| 版本 | 发布日 | 主要的版本升级内容 |
| 2022 | 22/02/09 |
|
操作环境
| OS | Windows 10 / 11 (推荐64bit) |
| 显卡 | OpenGL4.2 対応 2GB 显卡内存 分辨率 1280 x 1024 (推荐 OpenGL4.2 対応 8GB 显卡内存) |
| CPU | 英特尔® i5、i7、i9或更高版本同等性能 |
| 所需内存(包含OS) | 4GB以上(推荐16GB以上) |
| 所需磁盘空间 | 10GB以上 |
| 显示器(画面分辨率) | 1280×1024以上 |
| 输入数据扩展名・文件输出 | 支持文件形式的详细此处 |
|
3D建模作业的流程 首先,按照制作新模型的要领制作构造物的外形。如果混凝土有损坏部,另外制作损坏状态的模型(图1),参照照片等资料,在相应的地方作为纹理粘贴。因此,可以表现损坏部或混凝土蜂窝等钢筋暴露的部位(图2a・3a)。 |
|
| ▼图2a 损坏图1 | ▼图2b 修补后1 |
![]() |
![]() |
▼图3a 损坏图1 |
▼图3b 修补后1 |
![]() |
![]() |
| ▼图5 水下的混凝土蜂窝示例 | ▼图6 水下的放大图 |
![]() |
![]() |
使用Allplan, 三维表现以现有结构物为目标的损伤部位和修补状况。
・对象:1969年设计的某净水场内的地下蓄水池
・规模:19.5m×23.7m、高程5.5m(周围有墙壁,空间内有12根带有基脚的柱子)
|
底板、顶板在有柱的芯上设为“柱列带”,在无柱的芯上设为“柱间带”。在柱列带和柱间带中,上端筋和下端筋是Dφ16、Dφ19、Dφ16
、Dφ19,交互是@125或者@250中的,这样的模式组合的配筋。 |
|
| ▼图2 柱子部分扩大 | ▼图3 钢筋形状工具 | ▼图4 从BIM模型变为2D图纸 |
![]() |
![]() |
![]() |
德国CAD制造商(Nemetschek公司)开发的BIM・土木工程三维通用CAD软件。
作为建筑土木CAD准备各种各样的构件。可连续进行基本图纸、渲染图像、演示映像、详细施工图、数量选出和概预算,可以设计、表现建筑物的整个生命周期。
| UC-1系统 | : | UC-1产品有从2维图纸制作3D配筋图的3D配筋模拟功能。Allplan可以读取这个3D配筋数据进行编辑。另外,三维数据也可以转换成二维图纸。 ■3D配筋CAD ■3DCAD Studio® |
| UC-win/Road | : | 可以将Allplan制作的建筑、土木结构以3DS格式导出,在UC-win/Road上使用。 因此可以进行景观、环境和道路的研究,并且以实际业务活用为前提的4D(施工)、5D(成本)模拟表现。 |
支持国土交通省官厅营建部制作的2014年3月的[BIM指南 第2编设计业务编]。该指南适用于2014年官厅营建事业(设计业务及工程),适用于使用BIM和在进行技术探讨的时使用BIM等情况。
提供支持BIM的3D图纸选项的"报告书、图纸全套服务"。该服务提供基于Allplan的2D、3D图纸和设计计算书等。3D配筋图可以用视图确认3D模型的3DPDF形式输出。 另外,准备了利用3D扫描和测量数据的3D激光扫描・建模服务(日文),以及从3D数据制作模型的3D模型服务(日文)。请咨询营业窗口。
Allplan支持在土木、建筑工程领域使用的各种文件格式的输入和输出,可以和使用的软件进行数据连接。
| 导入 | |
| AutoCAD | dwg , dxf , dwt , dxb |
| MicroStation | dgn |
| PDF、PDF-A、3D-PDF | |
| IFC※ | ifc |
| CINEMA 4D | c4d |
| SketchUp | skp |
| Rhino | 3dm |
| STL | stl |
| VRML | wrl |
| Hpgl/2 Plotter文件 | plt , hp , hpg , hpl , pm |
| 3D Studio | 3ds |
| Adobe Illustrator | ai |
| 导出 | |
| AutoCAD | dxf , dwg , dwf |
| MicroStation | dgn |
| PDF、PDF-A、3D-PDF | |
| IFC※ | ifc |
| SVG | svg |
| Hpgl/2 Plotter文件 | hp, hpg , hpl , pm |
| RIB iTWO | cpixml |
| SketchUp | skp |
| Google Earth | kml |
| CINEMA 4D | c4d , c4u |
| Rhino | 3dm |
| STL | stl |
| VRML | wrl |
| Universal 3D | u3d |
| 3D Studio Max | 3ds |
※IFC文件是IAI面向建筑行业提出的标准文件格式。
LOADING