WebLesson:#13
RCラーメン橋脚の水平抵抗機構
〜メカニズムと破壊モード〜
株式会社 フォーラムエイト 技術サポートグループ |
ラーメン橋脚は,柱を梁で剛に結合した構造である.同じ断面および高さを有する単独の柱に比べて,剛性ならびに水平耐力を大きくすることができる.よって,変形を小さく制限したい鉄道高架や,高さの高い橋脚が必要となる場合,単独の柱に比べて合理的な設計が可能となる(たとえば,写真-1).
しかし,ラーメン橋脚は不静定構造となる.よって,梁と柱の剛性比率や耐力比率によって,作用断面力の分布や,変形性能,破壊形態が複雑に変化する.さらには,地震力のような水平力が作用すると,柱には大きな軸力変動も生じる.よって,地震に対する安全性検討において重要な,変形性能および破壊形態の算定において,複雑な非線形解析が必要となる.
そこで,ここでは,典型的な道路橋の1層2柱式RCラーメン橋脚を対象に,その面内方向における水平抵抗機構時について,静的プッシュオーバー解析の結果を用い,基本的な水平抵抗メカニズムを整理する.後半では,柱あるいは梁の耐力を変化させ,変形性能および破壊形態に与える影響を考察する.
Key Word:ラーメン橋脚,塑性ヒンジ,プッシュオーバー解析,許容塑性率 |

(a) ラーメン高架橋(鉄道橋) |
|

(b) 1層3柱式ラーメン橋脚(道路橋) |
| 写真-1 RCラーメン橋脚の例 |
|
1.解析対象
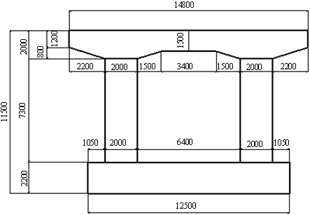
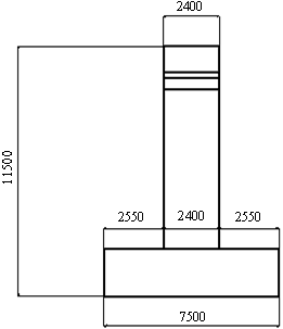
解析対象は,図-1に示す支間40mの10径間連続剛 I 桁橋の中のP2橋脚である.表-1にP2橋脚の諸元を,図-2に一般図を示す.P2橋脚は,高さ9.3m,2.0m×2.4mの断面を有するRCラーメン橋脚である.
 |
図-1 橋梁一般図
|
| 重要度区分 |
B種の橋 |
| 地域区分 |
A地域 |
| 耐震設計上の地盤区分 |
II 種地盤 |
| 形式 |
10径間連続剛 I 桁橋 |
| 活荷重 |
B活荷重 |
| 使用材料 |
コンクリート |
σck=21N/mm2 |
| 鉄筋 |
SD295 |
| 基礎 |
杭基礎 |
| 柱高さ |
7.3m |
| スパン |
40m×10径間 |
| 幅員 |
19.45m |
| 固有周期 |
橋軸方向 |
1.00s |
| 橋直角方向 |
1.00s |
表―1 構造諸元と設計条件 |

(a)正面図 |

(b)側面図 |
図-2 解析対象橋脚一般図 |

(a) 配筋図(柱) |

(a) 配筋図(梁中央)
図-3 断面配筋図 |
図-3に,柱と梁の配筋図を示す.現行の道路橋示方書により,耐震性能2を満足するように決められている.柱,梁とも,変形性能を向上させるため,せん断補強筋を兼ねた横拘束筋(帯鉄筋と中間帯鉄筋,共にD22ctc150)が配筋されている.梁については,帯鉄筋が2段配筋されている. |
2. 解析モデルと解析手法
2.1RCラーメン橋脚のモデル化
解析対象を,図-4 に示す39点の多要素系の骨組みでモデル化し,慣性力作用位置に水平力を静的に漸増させ,静的プッシュオーバー解析を実施する.隅角部とフーチングは剛域として扱う.その他の部材は,弾性梁要素とする.
図中のA〜Fは塑性ヒンジの発生が想定される位置を示している.水平力とともに軸力が変化するため,A〜Fについては,断面の降伏耐力をその軸力に応じて逐次算定し,作用する曲げモーメントがその降伏モーメントに達すると,剛性をに置き換え,塑性ヒンジの形成を表現する.すなわち,完全弾塑性型の特性を与えた塑性ヒンジが順次形成されることにより,橋脚全体の水平抵抗機構が変化することとなる.

図-4 骨組みモデル |
|
2.2材料モデルと要素モデル
塑性ヒンジ位置における,曲げ耐力の算定に用いるコンクリートの応力―ひずみ関係を図-5に示す.道路橋示方書に従う曲線とし,横拘束筋による拘束効果を考慮する.
図(a)は梁部断面に用いる応力ひずみ関係,図(b)は柱部断面に用いる応力−ひずみ関係である.終局ひずみは,梁で0.0087,柱で0.011と,1%近い大きな値となる.また,最大応力も梁で24.2N/mm2,柱で25.0 N/mm2と,基準強度よりも20%近く大きい.これらは,いずれも横拘束筋の効果により,性能が大きく向上したものである.
鉄筋については,完全弾塑性型の特性とする.

(a) コンクリートのσ−ε曲線(梁) |

(b)コンクリートのσ−ε曲線(柱)
図-5コンクリートの材料モデル |
ここに,
σc :コンクリート応力(N/mm2)
σck :コンクリートの設計基準強度(N/mm2)
σcc :横拘束筋で拘束されたコンクリートの強度(N/mm2)
εc :コンクリートひずみ
εcc :コンクリートが最大圧縮応力に達する時のひずみ
εcu :横拘束筋で拘束されたコンクリートの終局ひずみ
ρs :横拘束筋の体積比
Edes :下降勾配(N/mm2)
|
3. 水平荷重−水平変位関係
3.1 塑性ヒンジの形成と構造系の変化
図-6に,プッシュオーバー解析より得られた,本例の水平荷重−水平変位関係を示す.図中の,A〜Fは,塑性ヒンジが形成された位置を表している.本解析対象では,最初に梁の塑性ヒンジが形成され,C(梁)→D(梁)→A(柱)→F(柱)の順で塑性ヒンジを形成した.本例では,4つめの塑性ヒンジが形成されると,水平荷重が一定となる,この最大水平荷重が,この橋脚の水平耐力となる.

図-6 水平荷重−水平変位関係 |
図-7に,各塑性ヒンジの形成時の,断面力図を示す.柱の曲げモーメント図に着目すると,柱の曲げモーメントが0となる位置は,梁両端に塑性ヒンジが形成される(=2番目の塑性ヒンジ形成)時までは柱のほぼ中央であるが,それ以降になると上昇し,せん断スパンが伸びていることがわかる.梁に塑性ヒンジが形成されることにより梁の剛性が低下し,構造系に変化が生じている.さらに,3番目の塑性ヒンジ形成時と,4番目の塑性ヒンジ形成時を比べると,4番目の塑性ヒンジ形成時では,右側柱の曲げモーメント0点が,さらに上昇している.
さらに,軸力の分布図に着目すると,死荷重時には左右柱均等に作用している.しかし,最初の塑性ヒンジ形成時には,圧縮側の軸力は死荷重時に比べて相当大きくなり,引張側ではほぼ0まで現象している.それ以降は,塑性ヒンジの増加に伴う,軸力の変動に大きな変化は見られない.
以上のように,塑性ヒンジの形成に従い,構造系が逐次変化することが,断面力図の変化から読み取れる.

図-7 塑性ヒンジと部材断面力の変化 |
|
3.2 終局変位の評価
複数の部材からなる構造系の場合,複数の部材が終局を迎えても,構造系としては水平抵抗を維持することができる.ここでは,道路橋示方書に従い,すべての想定塑性ヒンジ断面で終局状態に達するか,いずれかの塑性ヒンジで2×φu(φu:終局曲率)に達した時点とする.
すると,塑性ヒンジは,図-8に示すように,今度は柱が先に終局を向かえており,F→D→C→Aの順で終局に達した.その後,塑性ヒンジFにおいて2×φuに達したため,この時の水平変位が終局変位となる.

図-8 構造系の終局の定義 |
|
4. 構造諸元が許容塑性率および破壊形態に与える影響
ここでは, RCラーメン橋脚の部材寸法(断面幅,柱高さ)及び鉄筋比(梁・柱の鉄筋径)が,破壊形態および変形性能(許容塑性率)に与える影響を検討する.
4.1 パラメータ
| − |
パラメーター |
柱高さh(m) |
断面幅B(m) |
軸方向鉄筋比pt(%) |
帯鉄筋pw(%) |
| 標準モデル |
7.30 |
2.00 |
D32 |
D22 |
D29 |
D22 |
| ケース |
パラメーター |
部材位置 |
柱 |
柱 |
柱 |
梁 |
柱 |
梁 |
| 1 |
柱高さh(m) |
柱 |
3.4〜15.5 |
− |
− |
− |
− |
− |
| 2 |
断面幅B(m) |
柱 |
− |
0.95〜3.90 |
− |
− |
− |
− |
| 3 |
軸方向鉄筋比pt(%) |
柱 |
− |
− |
D16〜D51 |
− |
− |
− |
| 4 |
梁 |
− |
− |
− |
D25〜D51 |
− |
− |
| 5 |
帯鉄筋pw(%) |
柱 |
− |
− |
− |
− |
D16〜D51 |
− |
| 6 |
梁 |
− |
− |
− |
− |
− |
D16〜D51 |
表-2 パラメータ一覧 |
変化させるパラメータについて,その一覧を表-2に示す.例えば,ケース1は柱高さを3.4〜15.5の間で変化させるケース,ケース3は柱の主鉄筋径を変化させるケースである.正しく設計すれば,柱の高さに応じ柱の鉄筋量が増えることになるが,ここでは,変化させるパラメータ以外のパラメータは,標準ケースの値と同じとしている.以降では,ケース3と4の結果を紹介する. |
4.2 許容塑性率の定義
許容塑性率μaは,道路橋示方書の定義に従い,次式とする.ここでは,α=1.5とする.
 |
曲げ破壊型 |
| せん断破壊形,曲げ損傷からせん断破壊移行型 |
ここで,δu;ラーメン橋脚の終局変位,δy;ラーメン橋脚の降伏変位である.両者の値は,前述したプッシュオーバー解析より算定される値である. |
4.3 梁・柱の軸方向鉄筋比と靭性率
図-9に,梁・柱の軸方向鉄筋比を変化させたときの,許容塑性率および破壊形態を示す.図(a)は,柱の主鉄筋を変化させたケース3の結果である.図(b)は,梁の主鉄筋を変化させたケース4の結果である.
まず,図(a)を見ると,柱主鉄筋の増大に伴い,許容塑性率が低下することがわかる.この時,破壊形態はすべて曲げ破壊型であり,連続的な変化を見せている.
次に,図(b)をみると,梁主鉄筋の増大に伴い,許容塑性率が低下する.しかし,梁主鉄筋比が0.7%を超えると,梁でせん断破壊が生じてしまうために,許容塑性率は1と評価されることになる.本例では,梁は柱に比べると,せん断耐力と曲げ耐力の比(せん断余裕度)が小さかったと考えられ,梁主鉄筋が標準ケースよりわずか(鉄筋径で1ランク)に大きくなっただけで,曲げ破壊型からせん断破壊型に変化したものと思われる.
いずれも場合も,その感度は異なるものの,梁および柱の主鉄筋の増大は,許容塑性率の低下を招くことがわかる.

(a) ケース3 |

(b) ケース4
図-9 鉄筋比と許容塑性率の関係 |
|
5.まとめ
- RCラーメン橋脚を対象に,静的なプッシュオーバー解析を実施した.
- 塑性ヒンジの形成に伴い,構造系が変化することを,断面力図から理解した.
- 梁や柱の鉄筋の増大が,許容塑性率の低下を招くことを示した.本例では,特に,梁の主鉄筋の増大はせん断破壊を引き起こし,許容塑性率を大きく低下させる要因となった.
参考文献
- 社団法人 日本道路協会: 道路橋示方書・同解説 X耐震設計編,P.148-153,平成14年3月
- 社団法人 日本道路協会: 道路橋の耐震設計に関する資料,平成9年3月
- 株式会社 FORUM8: RC下部工の設計計算
|