サイトマップ
|
ご利用条件
|
お問い合わせ
|
英語翻訳サイト
|
Japanese
|
English
|
Korean
|
CHS
/
CHT
|
Vietnam
|
Francais
TOP PAGE
新着情報
開発情報
Up&Coming
キャンペーン情報
ポイント・バンク
プレスリリース
コンテスト/協議会
有償セミナー
体験セミナー
イベント
セミナーレポート
セミナー・イベントカレンダー
製品情報:シリーズ別
UC-winシリーズ
シミュレーション
FEM解析
3DCGシリーズ
UC-1シリーズ
構造解析/断面
橋梁上部工
橋梁下部工
基礎工
仮設工
道路土工
港湾
水工
地盤解析
CALS/CAD
維持管理・地震リスク
建築/プラント
船舶/避難
Suite/スイートシリーズ
サポート/サービス
製品情報:ソリューション別
耐震診断/補強
鋼橋設計
橋梁新工法
建築設計
自治体
ECO
新製品/バージョンアップ情報
開発中製品情報
受託開発サービス
Products Guide製品カタログ
電子マニュアル・操作ガイダンス
オーダーページ(製品購入/御見積作成)
レンタルライセンス/フローティングライセンス
WEB見積サービス
資料請求
製品別サポート
動作環境一覧表
問合フォーム
ユーザ情報ページ
電子メールサービス
特許一覧
商標一覧
メディアでの紹介/記事・広告掲載
協賛・スポンサー/パートナー
リンク集
論文発表
WebLesson
リンク集
会社案内
採用情報
決算公告
Branch&Showroom (支社一覧)
お問い合わせ
海外代理店
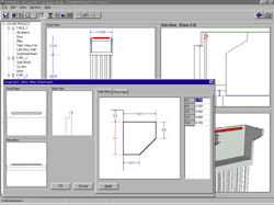
逆T式橋台・重力式橋台設計計算
▼基本形状テンプレート
▼液状化の判定、流動力
橋脚・橋台・擁壁では、地層条件入力後、水平地盤にモデル化して、液状化判定、流動力の算出を行うことができます。
▼堅壁コンポーネントの入力
堅壁Component入力では、3面データを入力後、翼壁、踏掛板受台をAttach mentsとして、設置することができます。
▼踏掛板受台形状入力
自重として考慮する踏掛板受台コンポーネントの寸法入力。翼壁
コンポーネント
の場合、フルウィングも含めて2タイプをサポートしています。
▼逆T式橋台形状ソリッドモデル表示
▼フレーム解析結果
▼杭基礎の安定断面照査結果
RC下部工の設計計算
■
[ ユーザー紹介 ]
岐阜県恵那市
北方工業大学 都市道路交通知能制御技術北京市重点実験室 交通行動・安全研究室
安部 尚樹 氏
[ イベントレポート ]
Smart City Expo World Congress 2025
デザインフェスティバル2025レポート
>> 製品総合カタログ
>> プレミアム会員サービス
>> ファイナンシャルサポート
最近リリースした製品
■
UC-1 Cloud 擁壁の設計・3D配筋 Complete
■
DesignBuilder Ver.2025.1
■
防潮堤・護岸の設計計算 Ver.4
■
マンホールの設計・3D配筋 Ver.12
■
橋梁点検支援システム Ver.4
■
Shade3D SDK Ver.4
■
ファイル転送サービス Ver.3
■
下水道管の耐震計算 Ver.4
■
BOXカルバートの設計・3D配筋(下水道耐震) Ver.15
■
FEMLEEG® Ver.15
■
橋台の設計・3D 配筋(部分係数法・H29道示対応) Ver.9
■
柔構造樋門の設計・3D配筋 Ver.18
キャンペーン実施中
■
新製品特別価格キャンペーン
■
松任谷由実 THE WORMHOLE TOUR 2025-26ペアご招待キャンペーン
■
ドローンスクール割引キャンペーン
■
Shade3D・F8VPS 20%OFFキャンペーン
セミナー・イベントカレンダー
開催間近のセミナー
1/5
ジュニア・プログラミング
1/6
ジュニア・ソフトウェア
1/8
基礎の設計・3D配筋
(部分係数法・H29道示
対応)
1/14
LibreOffice体験
ソフトウェア/支援サービス
VRソフト
(バーチャルリアリティ)
《UC-winシリーズ》
・道路・シミュレータ
・ドライブ・シミュレータ
・マイクロ・シミュレーション
・避難解析・シミュレーション
>>その他VRソフト
FEM解析ソフト
・3次元プレート動的非線形解析
・2次元動的非線形解析
・総合有限要素法解析システム
>>その他FEM解析ソフト
土木・建築・設計ソフト
《UC-1シリーズ》
・構造解析/断面
・橋梁上部工
・橋梁下部工
・基礎工
・仮設工
・道路土工
・港湾
・水工
・地盤解析
・CAD/CIM、建設会計
・維持管理・地震リスク
・建築
・船舶/避難
>>その他土木・建築・設計ソフト
クラウド
《スパコンクラウド®》
・スパコンクラウドサービス
《VR-Cloud®》
・リアルタイムVRシステム
解析支援サービス/サポート
・UC-win/Roadサポートシステム
・設計成果チェック支援サービス
・Engineer's Studio®解析支援
・地盤解析支援サービス
・EXODUS/SMARTFIRE解析支援
・xpswmm解析支援サービス
・建物エネルギーシミュレーション
・3Dレーザスキャン・モデリング
・3D模型サービス
・3D報告書・図面サービス
>>その他支援サービス
各種ソリューション
・耐震診断/解析
・鋼橋設計
・橋梁新工法
・建築設計
・自治体
・医療系VRシステム
・パーキングソリューション
・ECOソリューション
>>その他ソリューション