 |
Vol.1 2010. 9. |
| |
3D図面サービス/3D模型サービス/3Dスキャン・VRモデリングサービス 最新情報
|
●「3D図面サービス」サンプルモデルの紹介
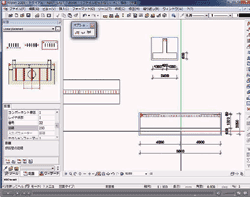
- AllplanシリーズのBIM統合ソリューションを用いて、3D図面および2D図面を作成するサービスを開始しています。Allplan3次元データ(IFC対応)出力を最終成果として提供可能です。対象構造物は、建築・土木構造物全般となります。
Allplanでは、2D図面を描画すると同時に、3D図面を作成することが可能です。平面図に各部材(柱、梁、壁、床など)を配置して、瞬時に3Dアニメーションを作成できます。マルチウィンドウを利用して、平面図と3D画面を同時に表示します。以下に、フォーラムエイトで公開しているAllplanの各種サンプルモデルの一例(土木構造物、建築構造物)を紹介します。
■仮橋の橋台モデル
- 仮橋とは、橋梁の架け替え工事などで橋梁が利用できない時に、迂回用として仮設する橋のことです。一般車や工事用の大型ダンプなどが通行する場合は、通常の橋梁と同等の強度で設計する必要があります。
仮橋の橋台は仮設橋の両端部にあり、上部構造からの荷重や土圧を支持する下部構造として、重要な役割を果たしています。サンプルではこの橋台の構造および配筋までを作成しています。
■U型擁壁
- U型擁壁とは、掘割道路や立体交差部の取付部分などに用いる側壁と底版が一体となった擁壁です。U字形状の中に盛土をして盛土天端を路面として利用する場合や、盛土をしないでそのまま路面として利用する場合があります。サンプルでは、このU型擁壁についても構造および配筋までを作成しています。
 |
|
 |
| ▲橋台サンプルイメージ |
|
▲U型擁壁サンプルイメージ |
■貯水槽
- 貯水槽は水を貯めておくための施設・設備で、上水道用水・工業用水・防火用水などの用途で使用されています。
サンプルモデル上部に存在する円形の開口部は、点検や清掃、検査などで使用する点検孔です。鉄筋コンクリート製のほか、金属(ステンレスや鋼板など)や樹脂(FRP)で製造されるものもありますが、今回は鉄筋コンクリート製を想定して、モデルを作成しています。
 |
| ▲貯水槽サンプルイメージ |
■建築構造物
- 低層マンションのサンプルモデルとなります。外壁はタイル、手摺はコンクリート打ち放し仕上げとしています。外構、敷地形状まで含めた図面作成サービスを提供します。また、上記で作成した2D図面から数量計算を行えます。工種別に属性を割り当てることで、各工事毎の数量算出はもちろん、工事費の把握も可能となります。
このように、計画・詳細設計・数量計算・概算工事費作成がBIM統合ソリューションを用いてできるようになります。
 |
|
 |
| ▲建築構造物サンプルイメージ |
|
▲数量計算結果イメージ |
●Allplan-ビデオチュートリアル
- Allplan ArchitectureおよびAllplan Engineeringは、BIM統合ソリューションとして英語版の販売を開始しています。このたび、Allplan日本語版の説明用資料としてビデオチュートリアルを作成しました。配筋図作成を中心に、新規プロジェクト作成から数量表作成までを一連で行える操作を説明しています。「仮橋の橋台」をサンプルとして、このビデオチュートリアルの通りに操作を行えばモデルが作成できるようになっています。
以下に、例としてチュートリアルで説明を行っている「鉄筋形状の指定」の操作方法を抜粋して紹介します。
- 「鉄筋形状ツール」を使って鉄筋の形状を指定していきます。モデルのon/offのボタンをonの状態にしておきます。
- 「ツール」⇒「エンジニアリング」⇒「棒鉄筋」⇒「鉄筋形状」で、形状指定を行うウィンドウが表示されます。鋼材等級や鉄筋径、鉄筋被りなどの情報を入力します。
 |
| ▲形状情報入力 |
- 上記で作成したセクションビューで鉄筋をモデリングします。鉄筋形状のひな形も用意されていますが、「freeform」から自由に作成することも可能です。
 |
| ▲鉄筋のモデリング |
- 鉄筋配置を行います。鉄筋形状ツールの下段のアイコンから「配置」をクリック、または「ツール」⇒「エンジニアリング」⇒「棒鉄筋」⇒「配置」で配置ウィンドウが表示されます。鉄筋被り、鉄筋間隔などの情報を入力します。
 |
| ▲鉄筋配置の編集画面 |
- セクションビュー上で配置場所をクリックし、[Esc]キーで確定後、鉄筋配置が完了します。
 |
| ▲鉄筋配置の確定 |
今後は、レイアウトおよび印刷などに関して、内容を順次追加していく予定です。
●Nemetchk Meeting with IAI
- 2010年7月1日にフォーラムエイト本社にて、Nemetschek社とIAI日本のメンバーによるミーティングが行われました。
Nemetschek AllplanからはCEOのPeter Mehlstaubler氏とSales DirectorのIvan
Koys氏が参加、IAI日本からは代表理事の山下氏をはじめ、5社6名の専門家の方々が参加されました。また、建築・ITジャーナリスト家入龍太氏が取材に訪れました。
ミーティングでは、NemetshcekからAllplanのHVAC機能連携、BIM分野で重要視されているFM(ファシリティ・マネージメント)分野での適用、Allplanが100以上の大学で使用されていることなどが紹介されました。IAI日本からはBuild
Live Tokyo 2009、Build Live Tokyo 2009 II(フォーラムエイトも参加)、Build
London Live 2009(フォーラムエイトも参加、チームはグランプリ受賞)などIAI日本の活動と、日本の国交省のBIMに関する動向や、IAI日本で策定予定のBIMガイドラインについての紹介が行われました。
フリーディスカッションではIFCの今後の活用やBIMに関する議論がされ、日本でのAllplanの展開にとって非常に意義ある交流となりました。フォーラムエイトからもUC-1シリーズ「橋脚の設計」のIFC対応、Allplan連携の計画を紹介しました。
 |
| ▲ミーティングの様子 |
●3D模型作成ビデオの紹介
●3Dスキャン、サンプルVRモデル
- フォーラムエイトでは、3Dレーザスキャナを用いて建物や道路など3Dスキャンを行うサービスを開始しています。今年9月にリリース予定のUC-win/Road
Ver.5で実装される点群モデリングプラグインを使用すると、スキャンしたデータを点群データとしてUC-win/Roadのデータに読み込むことができ、建物や橋梁などの既存の施設の形状をVR上で正確に表現することができます。
画像は日本橋付近を再現したVRデータに日本橋をスキャンした点群データを読み込んだ例です。VRと組み合わせることで点群の周りに車や人などの動きを表現することができます。特に、図面の入手が困難な現況の施設をVR上で正確に表現したい場合には、VRと3Dスキャンによる点群データの組み合わせが有効となります。また、点群の抽出機能などを使用し、読み込んだ点群データをもとに道路を作成することも可能となり、既に点群データをお持ちのお客様はVRを簡単に作成することができます。
 |
|
 |
| ▲点群のみの場合 |
|
▲点群とVRを組み合わせた場合 |
今後、多くのお客様に3Dスキャンサービスと点群モデリングプラグインを活用していただくため、VRと点群データを組み合わせたさまざまなサンプルを公開してまいります。3Dレーザスキャン・モデリングサービスおよび点群プラグインをぜひご利用ください。
|
|
| (Up&Coming '10 秋の号掲載) |
 |
|







>> 製品総合カタログ

>> プレミアム会員サービス
>> ファイナンシャルサポート
|